
Hall
Hall
Vi har arrangementet i to ulike haller.
Frænahallen som samlingspunkt lørdag.
Selve stevnet vil foregå i Eidehallen på søndag.

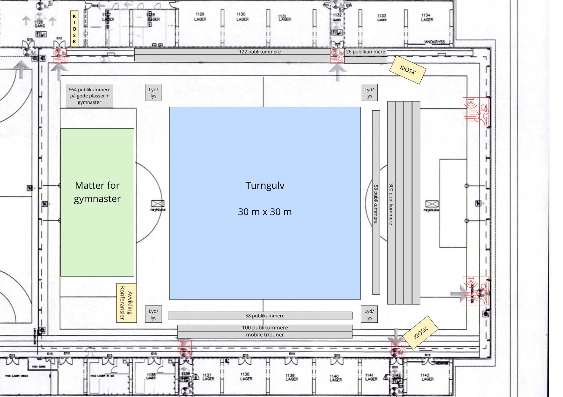
Eidehallen
Per dags dato så er dette skissen av hvordan vi ser for oss arrangementet.
Publikum på tre sider. Et eget sted for gymnaster.
Vi har også egen kafe som ikke er på kartet.
